
亚也纷纷
发布时间:1970-01-01
IT女“一毛不拔”搞装修
本人IT女一枚,出于职业习惯,做事喜欢扣细节。而且,一定要做好了比较完善的计划才开始。所以,在我购买房子那天起,就开始了我的装修规划,写预算表、看小红书或装修类书籍、混装修群等等。只是,等到了装修那一天我才发现自己错了。准备的太早,浪费了大量的时间和精力。真到装修了,风格和想法都会有变化,前面精心准备收藏的资料可能就用不上了。在这里,给个建议——提前半年左右准备装修相关事宜就行了。PS:关于这套房子及后续装修的预算,都是来自我爸妈的大力支持,非常感谢他们为宝贝女儿我做的这些。
等啊等,等啊等,等啊等......终于是等到了交房的日子。精心打扮了一番之后,我也是来到了交房现场。因为在交房前就确认了装修交给有家装饰,所以事先约了工长过来验房。一切都没有问题后,就填表提交给开发商。为什么找有家装饰?额,这也是缘分啊!身边的同事,在这个品牌做过装修,质量非常的不错,我算是慕名而来选择的该公司。另一方面,在我来到这家公司的第二天,我爸妈也是打电话给我推荐了有家装饰。后面呢,双方深入沟通过后,我也是参观了他们的材料展厅、工艺间及十来套在建工地,发现有家装饰确实挺好的,果断是提前签约(下定)了。验房结束后,一同来现场的设计师吴路瑶和他的团队,也是全方面帮我家量了一次房。




由于前期我和吴路瑶前期后后已经沟通了十余次,所以对于我的装修需求他还是很了解的。所以,量完房他就直接回去加班加点赶方案了。没过几天,吴路瑶老师就告知我,他做了几稿方案,让我过来看看满不满意。首先说一点,开头我就说过:出于职业习惯,做事喜欢扣细节。所以,前面看得几稿方案,在旁人看了已经挺好的了,可是我还是以某某空间还是有点配色或者其他方面的问题,让吴路瑶老师再帮忙改改看。
其实,刚开始的时候我有点怕他发飙,毕竟我这样子有点鸡蛋里挑骨头的感觉。后面我发现他的脾气出奇的好,每次都是按照我的要求调整,更是加入了很多他的独特想法,让我有眼前一亮的感觉。吴路瑶老师在讲解方案的时候,还为我讲解了很多之前不懂得地方,解决了我在装修方面的疑虑。就这样,在他的耐心与我的挑剔的双重作用下,我家的方案也终于是定稿了。不知道是不是我看错了,在听到我说“可以了”这句话之后,吴路瑶老师微微松了一口气。然后吴路瑶老师给的施工合同报价,大体上也是在我的心里价范围。
一楼平面图
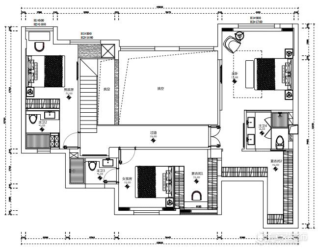
二楼平面图
再后面,就正式签订了施工合同。没过几天,施工也是开始了。整个装修过程中,我和爸妈也是去看过几次,施工很规范,隐蔽工程也很仔细没有偷工减料。各个工序都有相对应的保护措施,确保不影响上一个工序的效果。就在这样如此标准的施工中,我的新家也是慢慢的成型了。
总体来说,设计效果和实际装修完的效果很接近,施工服务也很好,基本在预计装修时间内。看到如此漂亮的新家,我们觉得再贵也值得了。在这里,我还是要再次感谢一下设计师吴路瑶老师、项目经理程工和现场各个工种的工人师傅们,这段时间为我家付出的劳动。下次朋友或者亲戚如果有装修需求,我肯定会推荐有家装饰。










