
成就感
发布时间:1970-01-01
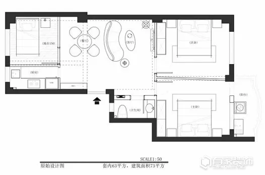
如何让每一平方都值回票价?
因为写装修日记的时间比较晚了,手机的很多图片都不在了。所以,水电和瓦工的照片基本都不在了,只有两张房子的旧图可以分享给大家。
我家是典型的紧凑型三室一厅的小户型,建筑面积大概73平米,未改造前存在的问题还是挺多的,比如说我家的厨房感觉太小了,每次煮饭都很不舒服。另外,厨房很暗,通风方面也不好。煮一顿饭,感觉整个人都要被油烟给熏哭了。客厅也是感觉存在很大的问题,每天不开灯都很暗,阳光都进不来。到了阴天,简直就跟黑夜有的一拼。我还要说说卫生间,真的太坑了,不仅面积小,而且还没有洗手台。每次上完厕所,都要跑厨房洗手......
原本我家的翻新计划还没有提上日程,毕竟装修太麻烦了,关键是要花钱。另外,装完还得通风一阵子,太累了。只是,一个意外惊喜让我改变了初衷。哈哈哈,我老婆怀孕了,我要升级当爸爸了。所以,我要尽快把房子翻新好,这样孩子出生后就可以马上住上新家啦。
因为平时太忙了,又不放心怀孕的老婆天天跑工地,所以我就打算直接找一家福州装修公司简单装修下。后面,经人推荐且自己也实际考察之后,选择了离我现在暂住地不远同时也是有过了解的有家装饰。签完合同后,他们给我推荐了一个专门做二手房的设计师。说实话,这个设计师虽然看过去年纪轻轻的,干起活来却是一点也不含糊,给我家设计的方案深得我心。

原本客厅存在问题挺多的,像是卫生间直对客厅、电视背景墙在次卧墙面隔音不好等等问题,这可是愁得让我睡不着觉。好在有了设计师的巧妙规划,向主卧“借”空间,规划成干湿分离的卫生间,有了一个独立的洗手台。恩,卫生间瞬间变得高大上起来,一点不输于那些大户型。
接下来的部分说明摘自设计师,我可是写不出来。客厅原先的24分墙被改成12分墙,往客厅扩展一部分空间,直接作为电视背景墙使用,解决了门直对客厅的情况。洗手区的另一边,也是直接打了一个袖珍的鞋柜空间。说实话,设计师这一连串的“神”操作,我真的彻底服了他了。
至于让我惆怅已久的厨房,貌似往儿童房方向“借用”了空间,无形中拓宽的厨房区域。碍眼的冰箱,也被外移到了餐厅!再加上透光性好的玻璃移门,瞬间让整个厨房较之前明亮宽敞了许多。
日记的末尾,我还想说一点。由于我有选择困难症,在软装搭配方面,设计师可谓操碎了心。耐心引导、实景展示、精心搭配......每一处的颜色、造型都是这样细致揣摩、比对,可谓是用心良苦!