
嘟嘟嘟
发布时间:1970-01-01
为了更美好的生活,冲鸭!
说在前面:
2018年7月儿子要上幼儿园,父母间隔来福州居住。为了2个孩子在一起,也为了以后照顾老人。因此,购买房子提上日程,初步考虑在本小区内购房。





时逢对门邻居举家搬迁至杭州,因此考虑买下作为以后的家。但对方一直磨磨蹭蹭,从2018年3月一直磨蹭到2019年3月,期间价格上涨了30万,终于买下。
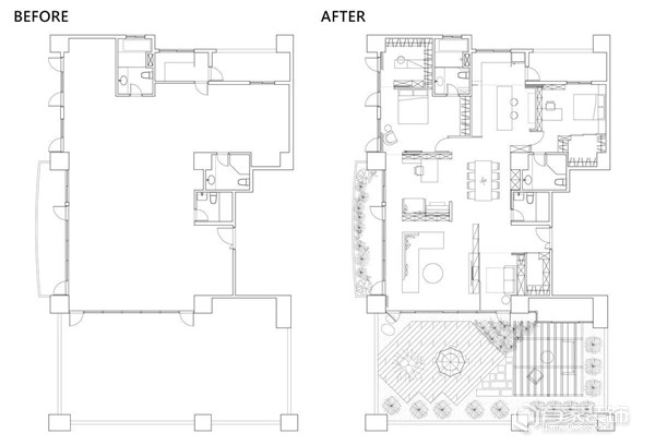
其实,我和老婆都有一种做任何事情都要提前准备好的习惯。这不,在商量好要买房之后,我们就开始研究装修事宜。时不时的会上网翻看装修网站,寻找合适的福州装修公司。闲暇之余,还会抽空去心目中选定的几家福州装修公司门店看看。正式拿到房子钥匙后,也是当即预约了几家此前参观过觉得还不错的装修公司设计师上门量房,然后给我出几稿平面方案看看怎么样。
首先排除的是某家号称“德系装修”的公司,主要是他们要求先交设计费再出方案;某川,高端大气上档次,就是费用也上档次,要是有别墅不缺钱的可以考虑;某家,原本挺满意,但是后面一个亲戚说找他们装修后期增项太多了,然后果断放弃了;有家装饰的郑林锋老师,设计理念很适合我们,几稿方案都深得我心。后续双方的沟通交流也无障碍,细节问题能够提前帮我们想到。期间,我和老婆还参加了郑林锋老师主讲的小区户型解析会,从中学到了很多知识。双方就报价、材料和后续施工等相关细节达成一致后,我毫不犹豫就签下了合同。

为了能尽快入住,早装修早晾房,我和老婆准备马上开工。开工大吉!成品保护、消防器材,有家装饰果然很专业。



开工仪式过后,马上就开始拆除。我家拆的地方不多,老房子了,承重墙比较固定,不怎么好有大的改动。考虑换防盗门,毕竟是十几年前防盗门了,隔音效果不太行,安全方面也是有些担心。

由于开工时间在年底,所以综合考虑之后,打算先做一些不怕跨年的项目,比如说拆除、砌墙和水电等,其余的等到年后再来做。PS:我也想坚持多做一些,奈何工人要回家,工地没人施工了啊!
不是我吹捧,看到我家现场的砌墙和水电照片,感觉还是很有条理挺规范的。哈哈...过年了,年后继续更新其他施工照片。











木作阶段
鉴于层高不足2.7米,我家的吊顶并没有做太复杂。世界500强的石膏板+E0级别的欧松板,感觉我家的品质相当OK。






经过5月的一波横扫、6月的又一轮补仓,我们家终于“毕业”了!拖了好久没时间拍毕业照,算是赶在大热天到了之前补上了作业!!!










话说我们也不常去工地,也就主材进场、水电等重点工序验收时去了现场。若有问题或者其他进展,群里也会及时沟通与汇报,大家还是很愉快的~