
就感觉KFG
发布时间:1970-01-01
98平米美式温馨家毕业照
忙活了5个月,房子终于毕业了。看着装修一新的房子,心里五味杂陈。那抑制不住的满腔喜悦,肯定就不用说了。但是,装修过程中的各种辛苦,也只有我们自己心里清楚。
装修公司是朋友介绍的,他说不错就主动联系了。实际上,早在交房前半年,我就在为交房后的装修忙活着,其中寻找合适的福州装修公司更是重中之重。前前后后也对比了十余家,也看了差不多大几十个工地,可是依旧没有找到理想中的那一家。
直至遇到朋友介绍的有家装饰,约定好时间后,我就应邀去他们公司门店逛了一圈,期间被样板间、工艺间及材料展厅给震撼到了。一句话:不仅颜值高、工艺细分齐全,装修小白一眼就能看明白,而且还能一站式购齐装修所需。很明显,这就是我想要的。再之后,我还去了他们的各个在建工地看了一圈,总体来说感觉很不错。所以…很自然地签约了。


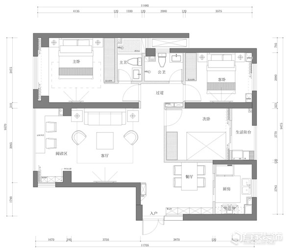
房子是我们的第二套房子了,所以也格外用心一些。吸取前套房子的经验,我和LG都倾向于美式,喜欢实用性强的设计,不太喜欢太繁琐的东西。房子面积只有98平米,存在客厅采光、过道横梁以及收纳布局不合理等问题。但是在设计师张达志老师的魔术手规划下,3房2厅2卫的布局,满足了我们三代同堂的居住需求,同时还解决了原始户型存在的诸多细节问题,让我们的居住幸福感大大提升。在墙面处理上,张达志老师大量运用美式风格线条,来突出空间的层次感,达到了我们心目中对于美式风格的所有想象。










客厅
客厅和餐厅,分别位于过道的两侧。打通客厅和阳台之后,客厅的采光效果变得更好。背景墙做对称式设计,采用白色装饰条造型。复古感的斜拼瓷砖,再加上小花片点缀,温馨而惬意的家居氛围让人感觉格外亲切。




餐厅
餐厅位于过道右侧,实木餐桌餐椅和客厅茶几、电视柜的色彩一致,让人有种复古而怀旧的情怀。餐厅一侧,就是用推拉门隔开的厨房空间。独立的厨房空间,彻底解决烹饪时的油烟问题。餐厅右侧墙面,还打了一整排的嵌入式餐边柜,做了柜内灯,整体实用性十足。




主卧
主卧的设计,没有过分装饰的墙面。摒弃各种画框,尽量保持墙面的干净。简单实用的圆形壁灯,同样采用对称设计。整个主卧的“豪装”,就是位于右侧的嵌入式衣柜,收纳功能强大。在靠窗的位置,做了柜子和飘窗一体化的设计。在床尾靠窗处,贴心的张达志老师,还专门为我们家规划了多功能区,既可作为简易办公区,也可以充当梳妆台。



次卧
次卧的设计,大体上与主卧没有太大区别,尽量保持墙面的干净。窗边做对称设计的收纳柜,也是进一步呼应我们家大量【对称】的主题。在储物方面,同样是打满一整排的嵌入式衣柜。

儿童房
考虑到儿童房的面积不大,但是要满足我们家两个孩子的需求。因而,设计师张达志在征求我们的建议后采用了上下铺的设计。墙面和床品,都融入温馨舒适的粉色和洁白纯净的白色。两者相互衬托,呈现出别样的美。

装修肯定不能一帆风顺,期间也遇到一些小问题,但还是在设计师张达志老师及项目经理陈工的帮助下解决了,现在房子也是圆满毕业了。