
哥悠购
发布时间:1970-01-01
IT宅男的装修进阶之路
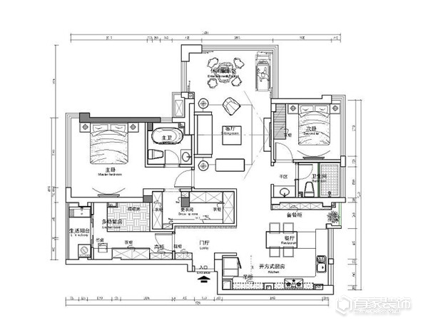
2017年,由于各方面因素的作用,主要原因还是本人年纪也来到了32岁,也不年轻了,需要在福州有一套属于自己的房子,这样子以后无论是结婚还是其他的,都可以用一个属于自己的私人空间。我买的房子是福州恒宇国际首府,建筑面积115平的房子,具体的原始户型图如下所示:

然而,好事注定多磨,辛辛苦苦买的房子交房前夕出了点小问题。不知道是什么原因,KFS突然在群里通知我们要推迟交房,这也使得我此前做的准备工作都成了无用功。没办法,钱都交了,只能等他们的通知了。就这样,时间又来到了2019年5月份,突然有消息称7月份要交房了。哈哈...听到消息的我自然是很兴奋了。兴奋之余,我赶紧重新拾起此前做的装修准备方案,开始了新一轮各大福州装修公司的看装修之旅。


由于前期做了很多方面的准备工作,对于潜在待选择的福州装修公司也是有了几个选择目标。因而,在看装修公司对比阶段就是直接在这几家装修公司的门店和在建工地来回奔波,这段时间可是把我累坏了(这里我就不一一列举这几家装修公司的名字了,等到童鞋们装修的时候,基本上不用去看,就会有装修公司打电话。这里我说下,我没有接到过有家装饰的电话,这个就非常不错)。划重点:建议专门找一个新本子,记录装修过程中遇到的问题,装修的支出,看过装修公司的各项内容等等,越有条理,后面会更方便。


连续对比了多家福州装修公司之后,后面还是觉得有家装饰更为可靠,然后就重新回到他们门店,又找了起初接待我的设计师林燕少,双方再次坐下进行了深入沟通。从基础的装修知识,常见的装修问题,再到装修风格选择,如何控制预算等等,总而言之聊的非常嗨。再然后,为了锁定他们家周年庆的钜惠,我也是选择提前在他们家下定了,坐等交房的到来。




时间过得很快,7月份到了,我等了两年的房子终于是交房了。交房当天,设计师林燕少也是带领他的团队拿着全套的专业工具帮忙验房,同时也对我家进行精细化的量房,方便后续方案设计。量房后的一周多,设计师林燕少也是给我家专门设计出了几稿方案。总体来说,方案看上去都挺好的,就是一些细节需要调整下。又过了一周多,在细节方面反复调整若干次后,我家方案定稿了。而后,双方就报价、施工细节等方面都达成一致后,正式签了施工合同。没过几天,我家就开工了。

在整个装修过程中,选材、软装搭配我都会向林燕少老师询问意见,征求他的意见。每每林燕少老师都是很耐心的给我建议和分析利弊,让我自己选择。施工问题上,也会站在我们的角度帮忙解决和协调很多细节上的问题。
所有的工人们都尽心尽责,手艺精湛,砌墙、水电和木作等尤为突出,让来参观的邻居都惊叹。前前后后施工了差不多有3个多月,我家终于完工了,我也是如愿以偿住进了新家。





总体来说,选择有家还是明智的。虽然价格有点小贵,不过物有所值。在这里,我要再次感谢为本次装修付出努力的设计师林燕少、项目经理程工和工人师傅们。