
发布时间:1970-01-01
有家案例新作 | 烟火岁月,觅人世间温情
现今这样的时代,许多人开始重新思考生活的本质,越来越多的人愿意花费更多的时间和心思回归自己的生活空间,毕竟,最终能够守护我们身心的,始终只有我们的家。
对于自己140平米的复式房子,他们希望设计出一种现代舒适的生活空间,设计师经过与他们的交流,最终以现代简约风格和素雅的色调为基础,营造出简洁大方的“家”。目光所及之处皆有惊喜,所到之处皆是温情。这样的现代设计手法,是对空间的每一处细节设计的匠心考量,从接手时的空白,到现在的丰盛与美好,这个家越来越接近林氏夫妇心中理想的状态。
装修户型:三室两厅
项目面积:140㎡
项目位置:福建•福州•建发央著
家庭成员:一家三口
设计风格:现代简约
设计/施工:有家装饰
设计师:吴路瑶
个人介绍:荣获2019上海国际设计周‘新锐中国设计奖’、第十届中国国际空间设计大赛优秀奖、第四届中国建筑装饰协会“红鼎奖”、2019年金鹰设计大赛铜奖(别墅豪宅)、2019-2020年度室内设计百强新锐设计师、2020年TOP100中国家居百强设计师、第五届中国建筑装饰协会“红鼎奖”优秀设计师奖奖项等。
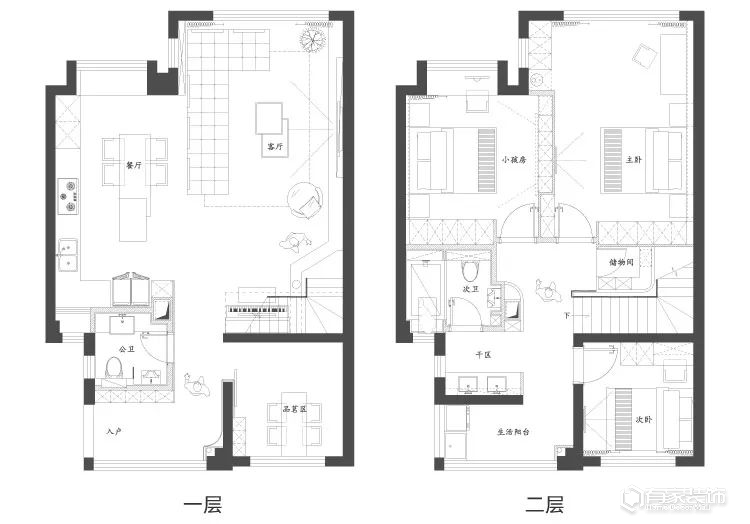
平面图布置
层空间展示:
玄关:在这样黑白极简的主基调中,以艺术速写焕然一新的注解,营造出简约、自由、舒适的的人居范本。入户玄关透露着安静、雅润的气质,阔达感由心自然而起,随氛围渐入到温馨的生活节奏里。
客厅:在简约空间中彰显个性,开放的室内空间,深浅色的对比运用,绿植的点缀,塑出简洁优雅氛围。设计师以原有的空间布局,以优化空间为主要任务,设法使空间的每平方米面积都得到利用。黑色和灰白这种协调的配色方案带来视觉舒适感,在色彩上实现色调的良好平衡。
餐厨区:空间不大,厨房、餐厅于一体的空间,白色餐桌背景,黑色吊灯犹如点睛之笔,更添一抹艺术气息。

二层空间展示:
主卧:找到属于自己的颜色,是让家拥有个人风格的开始。低调的贵族黑和极简白,是林氏夫妇最喜欢的两种颜色。不管家居风格怎么变化,总能在或大或小的区域找到这两种颜色的身影。“休息区的静谧,是我们疲倦的舒缓”,主卧设计的简约线条勾勒出极致舒适居家情调,满足了林氏夫妇的空间需求。进入卧室空间之中,可以渐渐安抚一天的浮躁,感受其中的静谧和光明。
次卧:灰白极简风格的次卧,没有太多明艳颜色的甜腻,连接一旁的飘窗,多了一丝阳光和温馨。整个空间弥散着清安、宁静的气息,给人带来一份直抵心灵的美好。

人生始终是一个过程,不断思考和尝试自己想要的生活。“家”在这个时代,不再是单纯的吃住使用,它是我们疲惫时的依靠,是保护伞、避风港,是这人世间,我们惟一的居所,亦是这烟火岁月里的那一抹温情。